Visit the Federal Research Updates 2025 website for current resources.

Innovation Campus development agreement signed

jbrehm2, February 24, 2011 | View original publication

Innovation Campus development agreement signed

In a significant step forward today for Nebraska Innovation Campus, the NIC Development Corp. board of directors signed an agreement with Nebraska Nova Development LLC to carry out the first phase of development at Nebraska Innovation Campus.

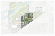
Nebraska Nova's managing partner is Woodbury Corp., a Utah-based development firm. Nebraska Nova initially will develop infrastructure at Innovation Campus such as roads and sewers to allow for construction of other facilities planned in Phase I, including a life sciences research center, a public-private office and laboratory building, a renovated 4-H building and a U.S. Department of Agriculture research facility. Renovation of the 4-H building into a central commons area likely will be the first building project.

Site work will begin later this year, with infrastructure development slated for completion in 2012.

"From our initial discussions about the Innovation Campus, we have emphasized the public/private partnership required to make this initiative work," said University of Nebraska President James B. Milliken. "The agreement with Nebraska Nova and Woodbury is a key relationship between a successful private partner and the University and state of Nebraska. This agreement will accelerate development and lead to other important partnerships that will create jobs and grow Nebraska's economy, which is our goal."

Under the terms of the agreement, Nebraska Nova is a non-exclusive developer, meaning the university or other tenants could build their own facilities during Phase I. Nebraska Nova will receive a portion of lease agreement fees from private partner companies that it helps recruit to Nebraska Innovation Campus. Lease agreements will be approved by the Nebraska Innovation Campus Development Corp., and the NICDC will be entitled to 10 percent of net rent for each site development lease.

Nebraska Nova was selected by the NICDC because of its willingness to put its own capital at risk and experience using tax increment financing and other financing options to avoid charging professional fees up front, Nebraska Innovation Campus Development Corp. vice president Tonn Ostergard said.

"A major obstacle to developing the property and seeking private-sector tenants has been the lack of an established infrastructure and leasable facilities," said Harvey Perlman, chancellor of the University of Nebraska-Lincoln. "The Woodbury Corp. has agreed to finance the infrastructure and take a leadership role in moving it forward. They have demonstrated their confidence in the project and we are looking forward to working with them."

Woodbury Corp. has been a leader in real estate development and office space since 1918 and has worked on several research park projects. It developed University Mall in Orem, Utah, and has more than 9 million square feet of retail, 1.5 million square feet of office, and nine hotel properties. Its new projects include Falcon Hill at Hill Air Force Base, a 550-acre private development; Adams Crossing in Brighton, Colo., a 780-acre mixed-use development of commercial, office, retail and residential; and Metro Center in Aurora, Colo., with 75 acres of retail and other mixed uses. Woodbury and Lincoln developer WRK are the lead developers for the West Haymarket Redevelopment Project.

"We are excited to partner with the university, city of Lincoln and the state of Nebraska on Nebraska Innovation Campus," said Zach Wiegert, manager of Nebraska Nova Development LLC. "With such a solid vision in place, we believe the private sector will positively respond. Aligning the talents of Nebraska's private sector and public sector, there will be added economic benefits felt all across our great state."

Nebraska Gov. Dave Heineman said, "I'm very pleased that the University of Nebraska is moving forward with plans to develop Innovation Campus. Innovation Campus is our opportunity to help leverage its research talent to fuel new economic growth and development. This is a long-term project with extraordinary potential for our state."

Nebraska Innovation Campus will be a premier private/public-sector sustainable research campus that capitalizes on research growth and expertise of UNL faculty to strengthen the economic growth potential of the state and the university. Located on 233 acres north of City Campus, it has been in the planning and predevelopment stages after coming into university possession Jan. 1, 2010.

University consultants hired in 2009 estimated the economic impact of Nebraska Innovation Campus could bring annual new payroll to the local and state economy of $267 million, including $149 million in direct annual payroll and $118 million in indirect payroll from new spin-off jobs. The development "represents one of the most significant economic development projects in the recent history of Lincoln and the state of Nebraska," SmithGroup/JJR reported. Planners are using a 25-year phased development approach.

For more information about Nebraska Innovation Campus and to view the most up-to-date versions of the plans, go to http://innovate.unl.edu.